NavLive Scan2Plan Service

Scan in. Plans out.

With NavLive’s Scan2Plan service, we’ll turn your NavLive scan data into accurate, professionally drawn floor plans, delivered in a couple of days.

Free

Up to 500m² (limited time offer)

~2 days

Target turnaround time

1x

Free revision included

Zero

CAD tools or expertise needed
The Transformation

From Raw Scan Data to Finished Drawing

Move the slider below for an example of what NavLive's Scan2Plan service delivers, transforming you building scans from point cloud data to professional architectural floor plan.

Raw NavLive Scan Data Before image
Finished Scan2Plan Drawing After image
Drag the slider to compare
The Process

Four Steps to Finished Drawings

With NavLive's Scan2Plan service, there's no learning curve, and no software to install. Just select your NavLive scan and our team will handle everything.

01

Scan with NavLive

Capture your building as you normally would using the NavLive Radius scanner. All scan data is automatically synced to your NavLive Portal account.

02

Select & Request

In your NavLive Portal, select the scan you want drawn up and click "Request Scan2Plan". Fill in a few simple details about your requirements.

03

We Draw

Our team works directly from your point cloud data to produce accurate, professional 2D floor plans in your chosen format — DWG, DXF, or PDF.

04

Plans Delivered

Your finished drawings are shared with you, ready to send to clients, open in your CAD platform, or use immediately on site.

Deliverables

What's Included

Every Scan2Plan order is produced to a defined standard, with a clear example provided in the Portal before you commit.

Top-down 2D floor plans for all floors

Full coverage of every storey captured in your scan, drawn as professional top-down plans.

Defined style, complexity & level of detail

Plans follow the visual style shown in the example provided, with no surprises on delivery.

Your choice of file format

Receive drawings as DWG, DXF, or PDF, ready for Revit, AutoCAD, ArchiCAD, SketchUp, and others.

One revision included

A single round of amendments is included with every order. Further revisions can be quoted on request.

Need more? Talk to us

For elevations, extra detail, or anything beyond the standard scope, our team will contact you directly with a tailored quote.

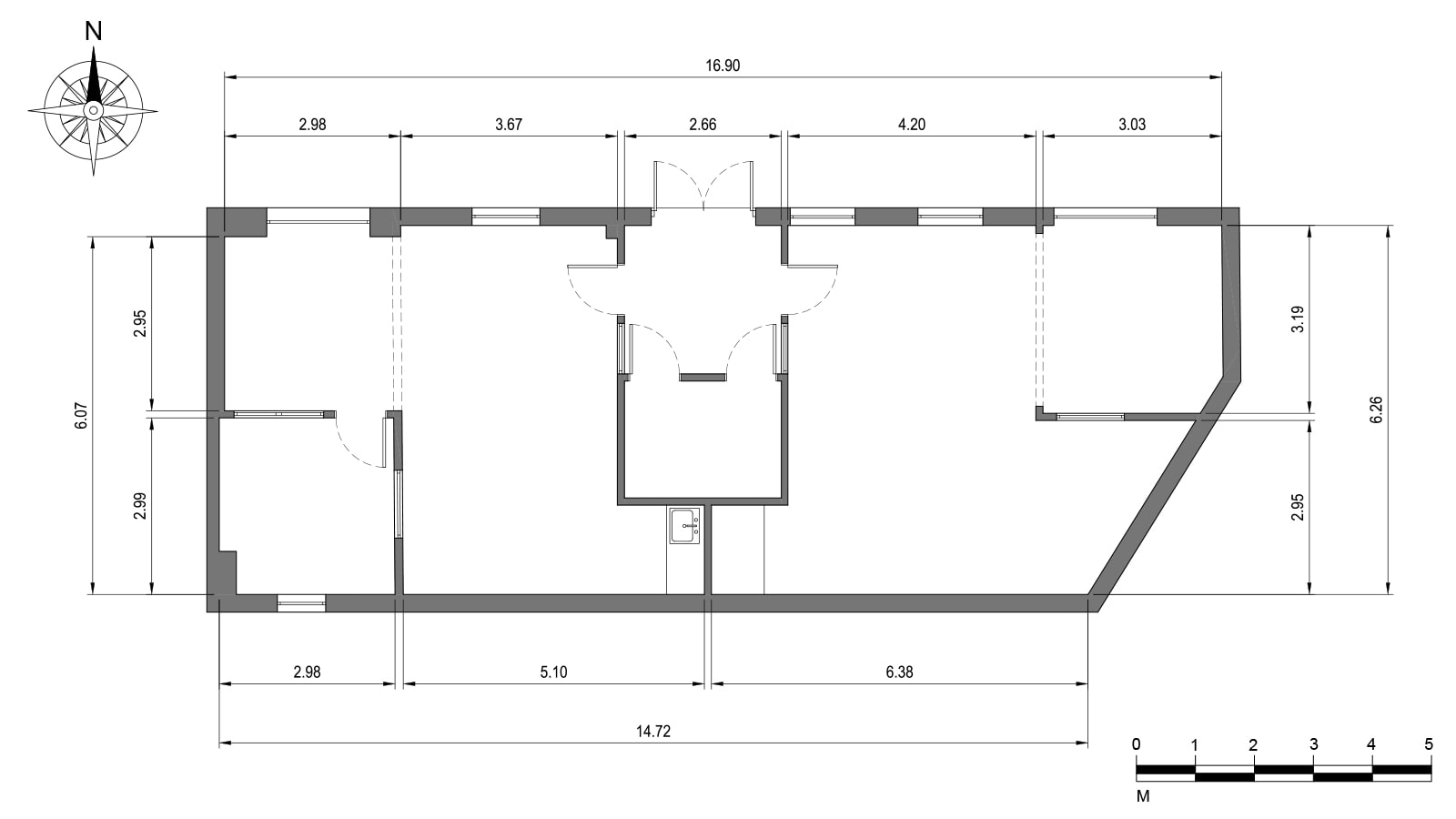
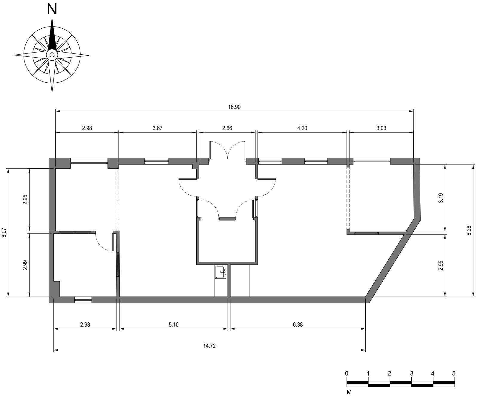
Example Scan2Plan Output

For Reference Only
Example Scan2Plan Output
Delivery

When Will My Plans Be Ready?

Turnaround scales predictably with project size. Most residential projects are complete within a few working days.

Up to 100m²

~2 working days

Typical for a single-storey flat or small commercial unit.

100 – 1,500m²

~1 working day per 100 m²

Scales linearly. A 500m² project would be approximately 6 working days.

Over 1,500m²

We'll be in touch

Our team will contact you to confirm timing and provide a customised quote tailored to your project.

NavLive Scan2Plan Pricing

Simple, transparent pricing

For a limited number of plans, Scan2Plan is free for areas up to 500m².
No subscription, no hidden fees.

Up to 500m²

Free

Limited availability, offer valid while budget lasts
Residential & Commercial
£0 / m²
Formats included
DWG, DXF, PDF
Revision included
1 round
500 – 1,500m²

£0.60 per m²

First 500m² at no charge
Residential & Commercial 2D Floor Plans
£0.60 / m²
Revision included
1 round
Over 1,500m²

Custom Quote

Tailored to your project scope and complexity
Delivery time
Confirmed on request
All project types
Residential & Commercial
Contact
About the free offer: The free Scan2Plan service is available for a limited total area across all customers. If you'd like to know how much of the offer allocation remains before committing, just ask, we'll check and come back to you. For projects spanning multiple drawings, the 500m² free allowance applies per customer across all orders combined. Any area beyond the free allocation is charged at the rates above.
Get Started

Ready to See Your Plans?

Open your NavLive Portal, select a scan, and request Scan2Plan. Our team will take it from there.

Don't have a NavLive scanner yet? Book a free demo.
NavLive Scan2Plan Service Terms: This service is provided on a best endeavours basis and under no warranty. While NavLive Ltd. will make every reasonable effort to ensure the quality of the output, NavLive Ltd. cannot guarantee any particular standard of quality and accepts no responsibility or liability for any negative outcomes resulting from this output. By using this service you agree to indemnify NavLive Ltd. against any such outcomes. *Delivery timescales are estimates and may vary depending on project complexity and current demand.

Schedule your NavLive demo

Schedule a NavLive demo

In this initial 15-minute call, we'll:

  • Gather some quick info about your current surveying workflows.
  • Answer any questions you have about NavLive.
  • Schedule an in-person site visit to demo the NavLive scanner at your office.